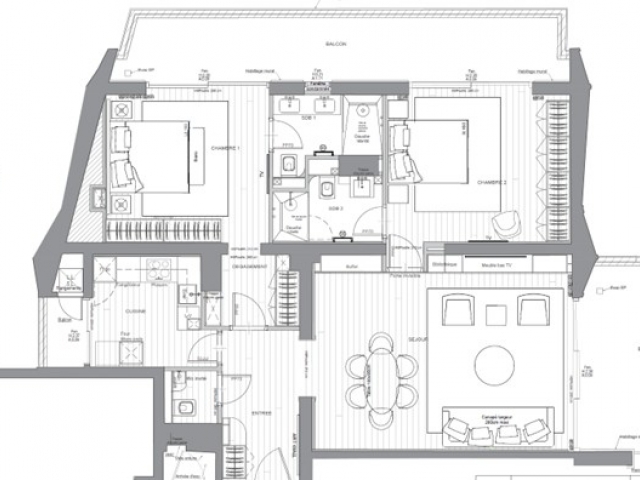
3 PIECES - MILLEFIORI - ENTIEREMENT RENOVE - VUE MER
Appartement Monaco
A vendre 12 000 000 €
- Appartement
- 157m2
- 2
- 2
- 1
Ref.: V-191
Les services proposés
- Avec terrasse
